太陽光発電・蓄電池・全館空調搭載の
シンプルながら、上品な空間を
実現したモデルハウスが完成しました!                                            
ミサワホームREADY-LUXE VILLA #馬木SmartStyle+の見どころや、ご覧になれる商品・インテリアをご紹介いたします。
 
                                    ご予約のお客様を優先的にご案内いたしますので、混雑時もお待たせせずにご見学いただけます。
ご相談内容やご要望を事前に伺うことで、不安や疑問を当日しっかり解消いたします。
事前に来場予約の上、お越しいただいたお客様に素敵なプレゼントを差し上げます。
※会場や時期により未実施の場合があります。
| 名称 | READY-LUXE VILLA #馬木SmartStyle+ | 
|---|---|
| 住所 | 広島県広島市東区馬木七丁目2353番23 | 
| 電話番号 | つながらないときは | 
| 営業時間 | 10:00~17:00 | 
| 定休日 | 火・水定休(完全予約制) | 
| 建物 タイプ | 木質系・工業化住宅 2階建て | 
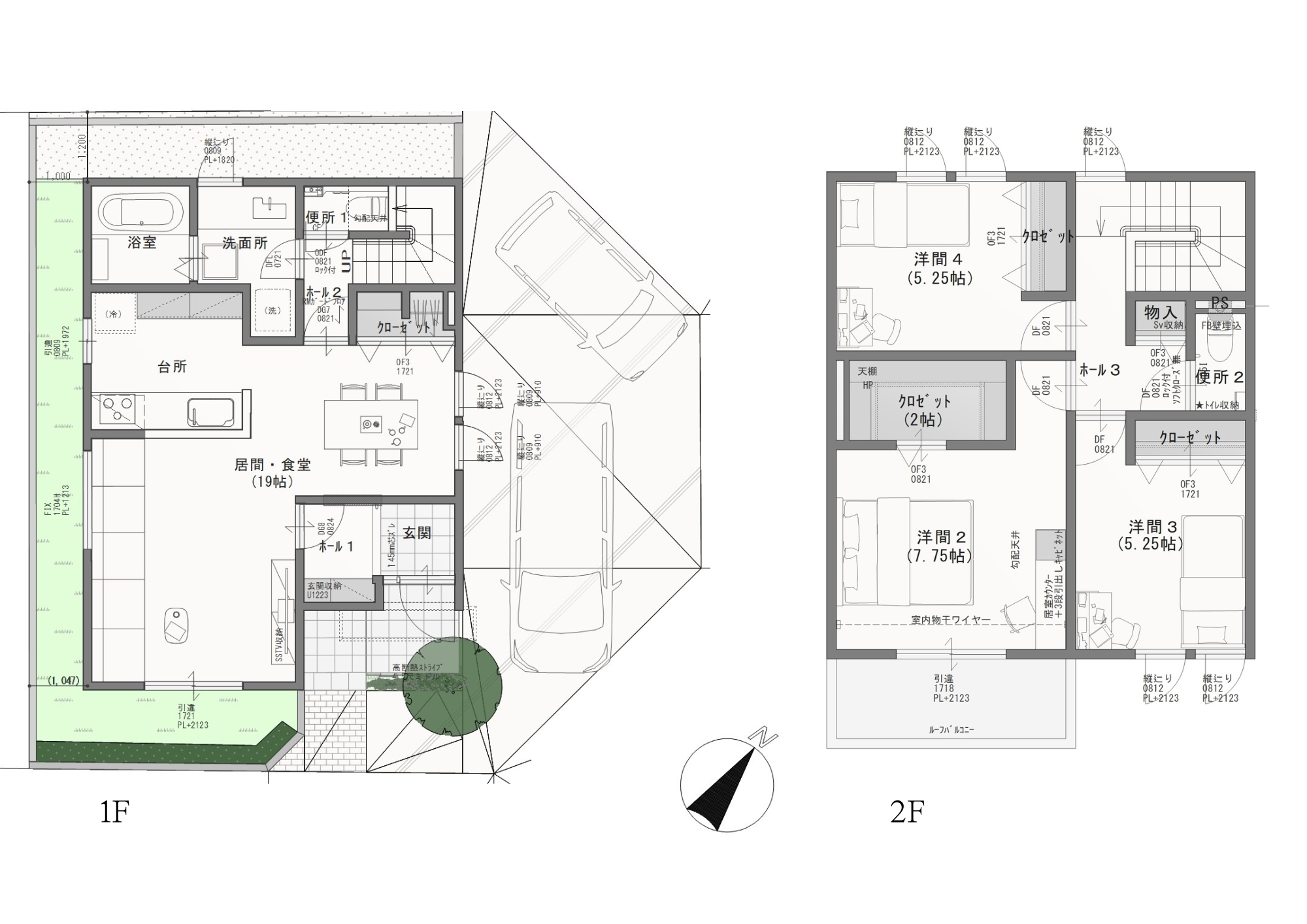
| 間取り | |
| お取り 扱い内容 | 注文住宅 建物・宅地分譲 | 
                                                    太陽光発電・蓄電池・全館空調搭載 ミサワホームのZEH仕様住宅
■3LDK◇3方角地の南側リビング・東側ダイニングで暖かな日差しに包まれるLDK
■約4.5mのソファ収納など空間を有効活用してコンパクトさの中に大容量収納を設置
■グレイッシュカラー+温もりのある天然木を取り入れたインテリアスタイル
見どころいっぱいのミサワホームの住宅を
この機会に是非、ご家族お揃いでご見学下さい♪                                                
| 開催日時 | 2025年10月1日 ~ 2025年10月31日 10:00~17:00 | 
|---|---|
| 開催場所 | 【馬木7丁目】広島市東区馬木 詳細を見る | 
| お問い合わせ | 電話:0120-118-330 営業時間:10:00~17:00 定休日:火・水定休(完全予約制) 担当者:向井 徹 |