山形県鶴岡市 ◆NEW|西新斎町見学会場 完全予約制

山形県鶴岡市西新斎町2-10

地図を見る

電話:0120-290-309

営業時間:09:30~18:30

定休日:常駐しておりませんので、事前のご予約をお願いいたします。

太陽光発電5.25kw+蓄電池5.5kw搭載のZEH仕様住宅。災害時も安心・安全♪

最高約4mの勾配天井と南面の連続大開口サッシにより庭とのつながりをいかした開放感を演出。

24.5帖の大空間LDKに大収納空間「蔵」をプラスし、収納力を高めた新発想の平屋住宅。

キッチンからリビング全体が見渡せる開放的な空間設計。家族とのコミュニケーションが取りやすい間取り♪

タタミスペースは、お子様の遊び場や夫婦のリラックス空間としてマルチに活用できます。

水廻りを直線状に配置し、玄関→洗面→脱衣室→LDKへと回遊できる家事ラクサーキュレーションプラン!

シンプルでスタイリッシュなファサード。3台駐車可能な配置で、クルマの出し入れも簡単です。

落ち着いたモダンな外壁にリビングからの大開口がウッドデッキへと繋がり、室内外が一体となった外観。

大収納空間「蔵」には趣味の品や日用品、大きな家具もまるごとしまえて便利。備蓄品などもたっぷり収納可能

内と外の良さが融合した「アウトリビング」は、四季折々の自然を身近に感じることができます!

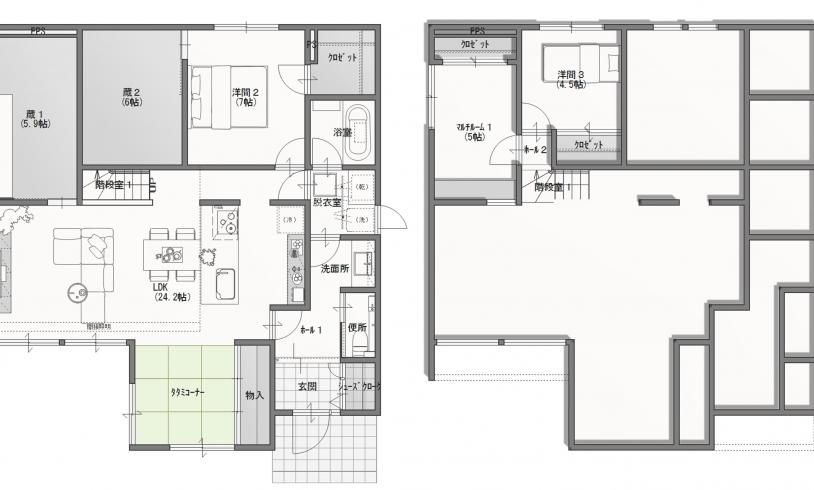
2F間取り|3LDK/土地面積330.63㎡(100.01坪)/建物面積96.88㎡(29.30坪)

2F間取り|3LDK/土地面積330.63㎡(100.01坪)/建物面積96.88㎡(29.30坪)

2F間取り|3LDK/土地面積330.63㎡(100.01坪)/建物面積96.88㎡(29.30坪)

◆NEW|西新斎町 見学会場でのイベント

2025年10月 グランドオープン予定!

自然が身近に感じられ、暮らしやすい平屋。「SMART STYLE Roomie 平屋蔵タイプ」はその長所をいかしながらも、2つの大収納空間「蔵」を設けて、タテへの広がりもある2層スタイル。リビングは南面の大開口により、平屋の特長である庭とのつながりをさらにいかした設計。平屋ならではの大屋根で大容量の太陽光発電5.25kw+蓄電池5.5kwを搭載した災害時も安心・安全な住まい!

ZEH Oriemted住宅/長期優良住宅/性能評価付住宅/省令準耐火仕様/ガス衣類乾燥機「乾太くん」/大収納空間「蔵」/寒冷地仕様エアコン4台/家具/カーテン/外構付

もっと見る

イベント会場の特長

ミサワホーム◆NEW|西新斎町 見学会場の見どころや、ご覧になれる商品・インテリアをご紹介いたします。

見どころピックアップ

子育て住宅

コミュニケーションを大切にし、子どもの成長を見守る住まい    

デザイナーズ住宅

卓越した技術と創造性による世界にただひとつのデザイン    

スマートハウス

「創エネ」「蓄エネ」「省エネ」+「調エネ」の先進の住まい    

特長キーワード

  • 子育て住宅
  • デザイナーズ住宅
  • スマートハウス
  • 長期優良住宅
  • 蔵のある家
  • 高天井(吹抜け)設計
  • 耐震+制震住宅
  • 高気密・高断熱の家
  • 防災・減災住宅

設計コンセプト

Be Simple 洗練を極める

- MONO MINIMAL -
余分なものをそぎ落とし、本当に必要なものを見極める。
よりシンプルに。よりミニマムに。
整理整頓されたすっきりさと、温かみのあるナチュラル色でつくる
シンプルだけど居心地の良いインテリア

もっと見る

スタッフメッセージ

2025年10月完成予定!

現在建築中のためご見学はできませんが、
物件詳細の資料をご用意しております♪
お気軽にお問い合わせください。

その他、ご希望に合わせて「知りたい情報だけ」という短時間のご案内も可能です。

***おおよその所要時間***
■モデルホーム見学 (30分~)
■マイホーム計画についてのご相談 (30分~)
■建物の構造や保証に関するご相談 (30分~)
■資金計画、税金、金利などに関するご相談 (30分~)
その他、気になる情報や聞きたいことなどございましたら、お気軽にご相談ください!

もっと見る
ご来場予約プレゼントキャンペーン ※会場によっては実施していない場合がございます。

ご来場予約のメリット

アイコン

混雑時も優先してご案内

ご予約のお客様を優先的にご案内いたしますので、混雑時もお待たせせずにご見学いただけます。

アイコン

ご不明点をしっかり解消

ご相談内容やご要望を事前に伺うことで、不安や疑問を当日しっかり解消いたします。

アイコン

素敵なプレゼントもご用意

事前に来場予約の上、お越しいただいたお客様に素敵なプレゼントを差し上げます。
※会場や時期により未実施の場合があります。

イベント会場情報

名称 ◆NEW|西新斎町 見学会場
住所 山形県鶴岡市西新斎町2-10
電話番号

0120-290-309

つながらないときは

0235-29-0303

営業時間 09:30~18:30
定休日 常駐しておりませんので、事前のご予約をお願いいたします。
商品名 SMART STYLE Roomie(平屋・平屋蔵タイプ)
建物
タイプ
木質系・工業化住宅
平屋
物件概要

詳細を見る

お取り
扱い内容
注文住宅
建物・宅地分譲
資産活用
リフォーム

アクセスGoogle Mapで見る

Google Mapで見る

お気軽にお問い合わせください。

一覧に戻る
地図電話

都道府県を選択

北海道
北海道